Nave industrial ubicada en el término municipal de Paracuellos de Jarama.
Situado en la Comunidad de Madrid, a unos 26 km al nordeste de la capital, y con proximidad al aeropuerto Madrid-Barajas Adolfo Suarez (6 km).
Las principales vías de acceso de este distrito periférico, son la M-45 además del fácil acceso tanto a la M-21 como a la A-1. Todas estas vías tienen una gran capacidad portante para el tráfico rodado.
Inter- Urbano: Líneas: 210 San Sebastián de los Reyes, 211 Ciudad Lineal, 212 Canillejas y 214 Barajas.
Se trata de 2 naves adosadas.
NAVE 1
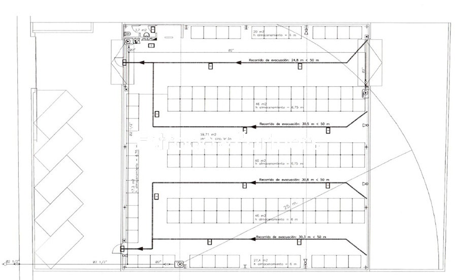
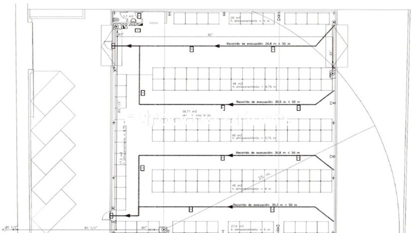
Superficie total: 1.600 m²
Superficie almacén: 1.400 m² Superficie Oficinas: 200 m²
Altura: 6,5 m
Patio delantero: 400 m²
Patio trasero: 400 m² (Cerrado y techado)
2 portones para vehículos, uno para trailers y otro para camiones pequeños y/o furgonetas, ambos automáticos.
Acceso peatonal para oficinas.
Dispones de BIES, extintores y detectores.
Aseos, vestuarios y office/comedor en planta baja.
Oficinas en primera planta totalmente instaladas, A/A, incluido mobiliario si interesa.
Totalmente equipada de un sistema de estanterías móviles automatizadas que permiten un 100% de capacidad de almacenaje.
NAVE 2
Superficie total: 600 m²
Altura: 8,5 m
Patio delantero: 200 m²
Patio trasero: 200 m²
No dispone de oficinas
BIES, extintores y detectores
Aseos
Totalmente equipada de un sistema de estanterías móviles automatizadas que permiten un 100% de capacidad de almacenaje.
Las naves se pueden alquilar unidas o por separado.
Superficie total: 2.200 m²
Superficie nave: 2.000 m²
Superficie oficinas: 200 m²
Patio delantero: 400 m²
Patio trasero: 400 m² (Cerrado y techado)
Superficies: 2200
Muelles:
Observaciones: Se tata de 2 naves adosadas.
Referencia: MNAV_0678


























