La nave de industrial se encuentra en Onda, Castellón, Valencia. Su entrada principal está en la vía de acceso CV-20. Las ciudades más cercanas son Castellón a 20 km y Valencia a 70 km. Además, se encuentra a 45 km del aeropuerto de Castellón y a 70 km del aeropuerto de Valencia. En cuanto a los puertos, está a 30 km de Castellón y a 74 km de Valencia.
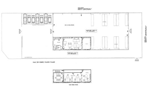
Conjunto de tres naves se encuentra en la primera línea de la Carretera, cada uno con una superficie de 900 m². En su interior hay oficinas de alrededor de 500 m², repartidas en dos pisos, con baños, comedor y un espacio para exhibición. También cuenta con amplios estacionamientos y cargadores para autos eléctricos. Las estructuras tienen una altura libre de 7 metros y están construidas con metal ignífugo. Además, tienen acceso por dos calles diferentes.
Superficies:
Superficie Total Nave: 3.200m²
Superficie Nave: 2.700m²
Superficie total oficinas: 500m²
Superficies: 3200
Muelles:
Observaciones:
Referencia: VNAV_0028













