El proyecto se encuentra ubicado en la zona de San Fernando de Henares, emplazamiento estratégico dentro de la primera corona logística alrededor de Madrid y el cual esta experimentando un considerable crecimiento en la actualidad.
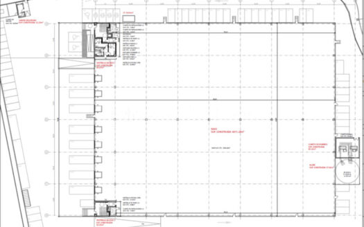
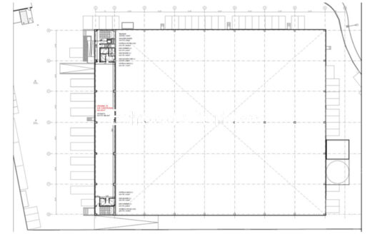
Módulo 2 Superficie Total: 5.165,32 m²
Superficie Almacén: 4.613,06 m²
Superficie Oficinas Pl. Baja + 1: 552,26 m²
Altura: 11,60 m
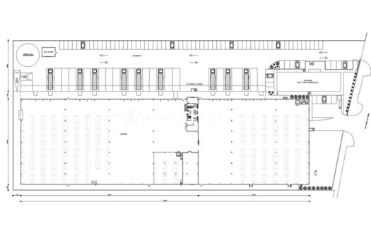
Muelles: 7.
Rampa: 1.
Portón
Acceso: 1
Sala de Bombas
Parking Vehículos
Estructura de hormigón armado prefabricado.
Zócalo de hormigón 500 mm. de altura.
Carga de los pavimentos de almacén >50 T/m².
Espacio e oficinas de acuerdo con las necesidades del cliente.
Iluminación energética eficiente.
Puertas de acceso desde los 3 m.
Área de oficinas acondicionadas y falsos techos con paneles de fibra mineral.
Lucernarios diseñados de acuerdo con la reglamentación vigente en España.
VGP Park se compone de 5 parcelas destinadas tanto a uso Industrial como Logístico sumando una superficie total de 230.000 m². Localizado junto al principal eje terrestre de comunicación con el resto de Europa, la Autovía A-2, comunica Madrid y Barcelona y a tan sólo 5 km del Aeropuerto de Madrid – Barajas.
Amazon, TIPSA y XPO son algunas de las empresas ya consolidadas en los nuevos desarrollos industriales de San Fernando.
El parque dispone de más de 135.000 m² de superficie, con unidades desde los 1.000 m² hasta soluciones personalizadas para grandes operaciones logísticas. Todos los espacios podrán ser adoptados a las necesidades de los futuros inquilinos, intentado ajustar los edificios a sus necesidades técnicas específicas. La eficiencia energética y la sostenibilidad son una prioridad para el propietario.
Superficies: 5162
Muelles: 7
Observaciones:
Referencia: MPL_307

























































