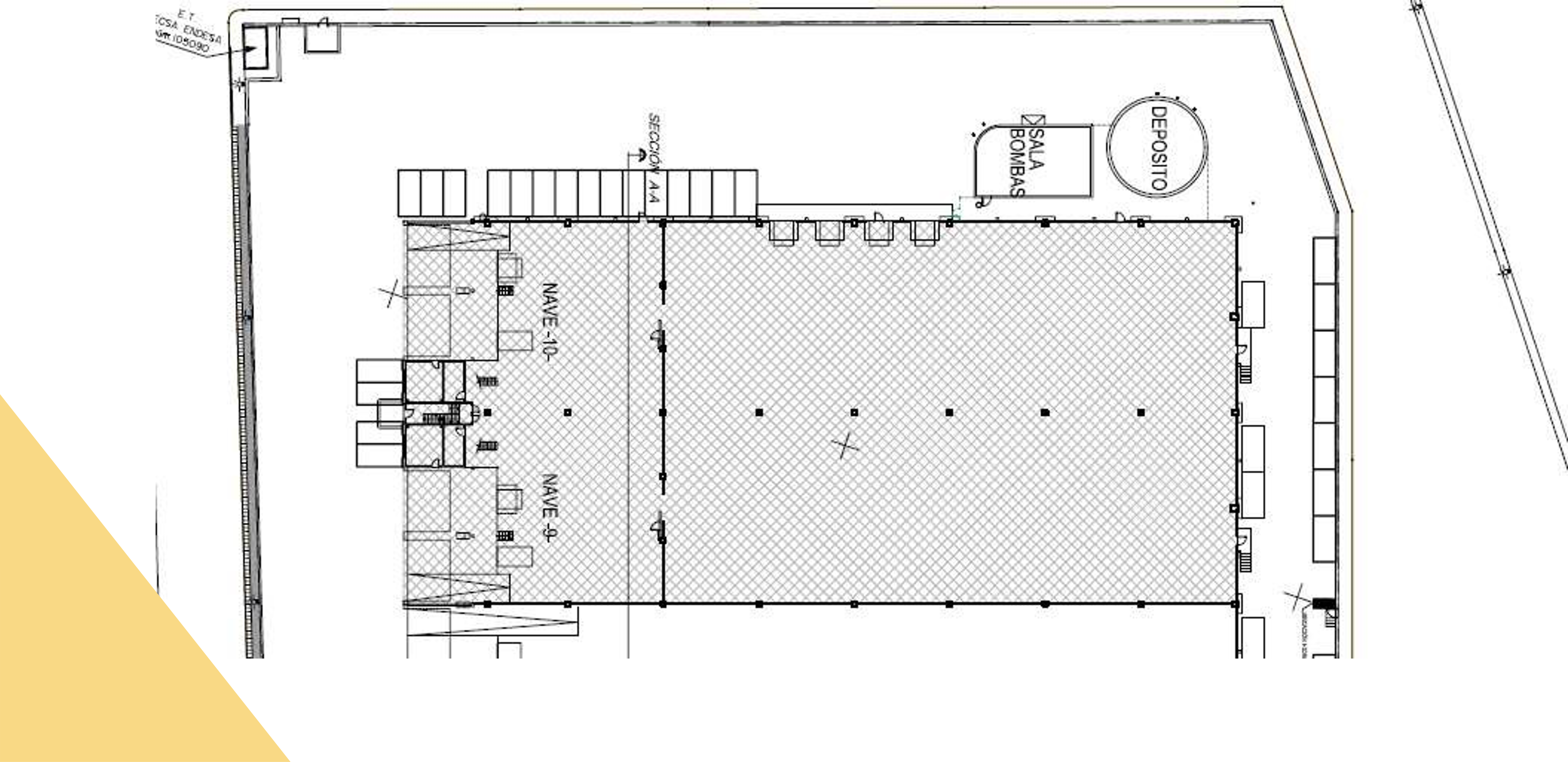
Nave industrial en alquiler sita en el Polígono Ind. Nord Est, Sant Andreu de la Barca a 20 km del centro de Barcelona y 22 Km. de la Estación de Sants(AVE).
Caracteristicas:
| •Nave logística de reciente construcción.
•Estructura de hormigón. •Cerramientos mediante panel metálico prefabricado. •Pavimento de hormigón. •Superficie diáfana. |
|
| •Altura interior libre de 10,50 m. | |
| •Cubierta tipo sándwich con aislamiento térmico.
•Posibilidad de adquirir estanterías con capacidad de 6.000 palets |
|
| •8 muelles de carga y 2 rampas. | |
| •Sistema contraincendios mediante Sprinklers ESFR, bocas de incendio y detectores. | |
| • Seguridad y control de acceso | |
| •Disponibilidad: Enero 2026 |
Documents
Altura libre:
Superficies:
Muelles:
Observaciones:
Referencia: PL_19
Superficies:
Muelles:
Observaciones:
Referencia: PL_19
Descargar PDF
También le puede interesar
Nave Logistica de alquiler en Castellbisbal de 4.997 m²
Nave logistica/transporte sita en la comarca del Vallès Occidental en Castellbisbal. Ubicado en lugar privilegiado [leer más]
Nave logistica/transporte sita en la comarca del Vallès Occidental en Castellbisbal. Ubic [leer más]
Nave Logistica de alquiler en Martorell de 25.327 m²
Nave sita en la comarca del Baix Llobregat, Martorell a tan sólo 30 km. del centro de Barcelona, a 31 km. del aerop [leer más]
Nave sita en la comarca del Baix Llobregat, Martorell a tan sólo 30 km. del centro de Barc [leer más]
Plataforma Logistica de alquiler en Polinyà de 2.000 m²
Nave logistica situada en la comarca del Vallès Occidental, en la población de Polinyà. A tan solo 40 minutos de Ba [leer más]
Nave logistica situada en la comarca del Vallès Occidental, en la población de Polinyà. A [leer más]
Nave logistica de alquiler en la Zona Franca de 1.400 m²
Nave sita en el Polígono Industrial de la Zona Franca, situado en Barcelona, a tan sólo 12 km. del centro urbano, a [leer más]
Nave sita en el Polígono Industrial de la Zona Franca, situado en Barcelona, a tan sólo 12 [leer más]

























